Exclusive Boutique Living in Silkstone

Only 6 architecturally designed homes in a connected, leafy Ipswich precinct.

Silkstone

Exclusive Boutique Living

64 Napier Circuit, Silkstone, Ipswich

Discover an exceptional opportunity to secure your place in a
meticulously planned 6-home boutique development project in one of Ipswich’s thriving precincts. Located at 64 Napier Circuit, Silkstone, this address blends tranquil suburban living with outstanding convenience
to education, retail, parks and transport.

Suburb

Silkstone is an established, leafy suburb dotted with local parks, cafes, and schools. Residents enjoy seamless access to arterial roads for easy travel throughout Ipswich and the greater Brisbane region.

Discover

Boutique Living

The Home

Duke Classic

A Blend of Style, Comfort & Smart Living

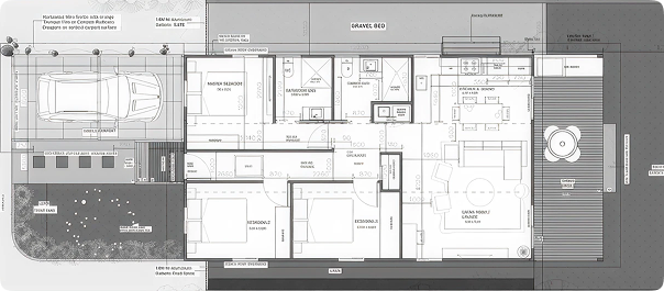
Floor Plan Highlights

  • Large open plan living/dining: 4.1m x 5.2m

  • Three spacious bedrooms: Master with ensuite, thoughtful separation between sleeping and living zones

  • Modern kitchen with full suite of quality appliances and walk-in pantry

  • Two stylish bathrooms and integrated laundry

  • Timber deck and secure carport

  • Lush landscaped surrounds and outdoor entertaining

Standard Inclusions

  • Cabinetry : Polytec Prime Oak Matt and Polytec Habitat Smooth finishes

  • Benchtops : Sleek Polytec Laminate White

  • Flooring : Contemporary Cement Matera vinyl plank and Tarkett ID30 “Soft Oak Natural” for comfort and longevity

  • Appliances : Full Blaupunkt set—rangehood, dishwasher, oven, and cooktop

  • Electrical : Ducted air conditioning, ceiling fans, and LED down lights throughout

  • Tiling : Designer kitchen splashback (75×300) and all wet areas with premium 600×600 tiles

Site & Home Overview

Area

Dimension (approx.)

Living/Lounge

4.6m x 4.7m

Kitchen/Dining

4.3m x 3.0m

Master Bedroom

3.2m x 5m

Bedroom 2

3.6m x 2.6m

Bedroom 3

3.6m x 2.6m

Common Bathroom

2.5m x 2.2m

Laundry

1.3m x 0.7m

Carport

Single, with roller door

64 Napier Circuit

Superb Surroundings & Everyday Convenience

Proximity Highlights

Schools: walking distance to all major schools, ideal for young families and growing children.

  • Silkstone State School – 0.4 km
  • Claremont Special School – 1 km
  • Ipswich Central State School – 1.1 km
  • Sacred Heart School – 1.3 km
  • Ipswich Girl’s Grammar – 1.3 km
  • Bremer State High School – 2.5 km

Shopping: supermarkets, eateries, everyday essentials and entertainment at your doorstep.

  • Silkstone Village – 0.3 km
  • Booval Fair Shopping Centre – 1.3 km
  • Ipswich CBD – 3.5 km
  • Shane Watson Oval – 0.2 km
  • Jim Donald Cricket Oval – 0.2 km

Public Transport: bus and train connectivity that is convenient for commuters.

  • Bus Stop – 0.3 km
  • Ipswich Train Station – 3 km
  • East Ipswich Train station – 3 km

Located in the thriving precinct of Silkstone, 64 Napier Circuit is surrounded by exceptional amenity and only 1.7km to the Ipswich CBD

The Development

Modern Boutique Community

This highly anticipated project presents six thoughtfully
designed, freestanding homes on a quiet residential circuit.
The site plan embraces privacy, low maintenance, and vibrant
street appeal—perfect for both families and astute investors.

Features of the development

  • Boutique community of only 6 homes for exclusivity and security
  • Architecturally cohesive streetscape with landscaped gardens
  • Contemporary street-facing façades
  • Single level living for comfort and accessibility

The Developer

Duke Housing is disrupting the construction market with its commitment to innovative, sustainable, and affordable housing. 100% Australian-owned, Duke’s modular building approach means faster build times, better affordability, and substantially less environmental impact. Homes feature up to 70% less construction waste and 45% lower carbon emissions compared to traditional methods, while achieving a 40% higher sustainability rating. All homes are manufactured at Duke factory in Brisbane and delivered complete with installation, ensuring quality and peace of mind. Every residence includes a 6.5 year structural warranty and a 3 month building defect period, backed by dedicated aftercare service.

The Builder

Churpat Building has over two decades of experience in residential construction, Churpat Building combines craftsmanship, attention to detail, and a modern ethos. Founded by licensed builder Nick Churven, Churpat specializes in medium-density residential projects and is recognized for delivery of superior quality across South East Queensland. Their leadership and collaborative approach ensure homes are completed to the highest standards of durability and finish.

Visualize

Your New Home

  • Elegant architectural site layout, well-proportioned interiors, and low-maintenance landscaping complete 
a perfect picture for contemporary living.

  • Seize your place in this exclusive address, backed by a trusted developer and builder, in a community poised 
for future growth and convenience.

Contact us today

to secure your new home at
Silkstone

All details are supplied by Duke Housing and Churpat Building. Plans, dimensions, and inclusions subject to final contract documentation.

Scroll to Top

Inquire

Inquire